소로초 증축설계

Soro elementary school extension

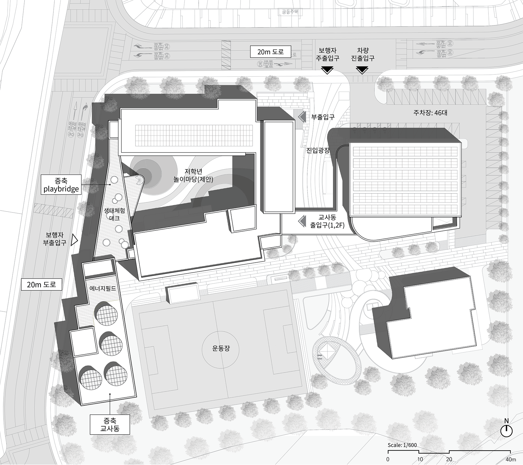
청주시 흥덕구에 위치한 소로초등학교는 2019년에 신설 이전한 이후 급격히 증가하는 학생 수로 인해 증축을 계획하게 되었다. 증축동은 대지 서측의 도로에 인접한 좁고 긴 형태의 부지에 총 20개의 교실 및 부대시설 규모로 조성될 예정이며, 대지 출입구, 교사동, 중정 및 운동장 등과의 관계 설정이 주요한 고려사항 이었다.

대지의 향과 조망, 도로변으로부터의 소음, 기존 교사동의 동선체계, 외부공간 접근성 등을 분석하여 ‘ㄷ’형 교사동을 연결하는 Play bridge를 만들고, 개방적인 층간 연결 및 중정과의 연결을 통해 창의적인 교육 및 놀이공간이 되도록 구성하였다. 또한 20개의 교실은 운동장에 면하도록 배치하였으며, 화장실, 계단 및 홈베이스 등 부속시설은 도로변으로 배치하여 채광과 소음 환경에 적합하도록 계획하였다.

외부 공간의 경우, 저이용되어온 중정을 2층의 Play bridge 데크와 연계하여 입체적인 저학년 중심 놀이공간으로 재조성하고 4층 옥상은 생태 체험 및 휴식식이 가능한 공간으로, 5층 옥상은은 태양광 및 우수집수 등 친환경 에너지 관련 교육이 가능한 공간으로 계획하였다.

Project: Soro elementary school extension

Year: 2022

Type: architecture/extension

Program: education facility

Location: Cheongju, Korea

Team: AbCT and Seoround